Cerca immobile per codice

Cerca il tuo immobile in

Opzioni avanzate

Opzioni aggiuntive

  • mansarda
  • giardino
  • ascensore
  • riscaldamento aut.
  • posto auto
  • nuovo
  • camino
  • taverna
  • ingresso indip.
  • aria condizionata
  • garage
  • ultimo piano
  • soffitta
  • pannelli solari
  • piscina
  • cassaforte


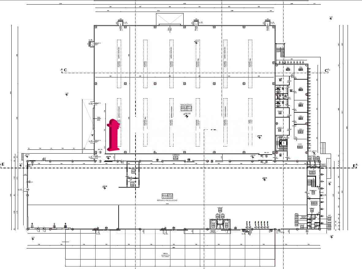
Capannone a Pianiga

Scopri questa straordinaria opportunità di affitto nel cuore di Pianiga, nella zona strategica di Cazzago. Proponiamo un capannone industriale e artigianale di ben 7000 mq, situato su un'area totale di 20.000 mq.

Il capannone è suddiviso in tre corpi principali: una spaziosa zona produzione di circa 2500 mq con altezza intern ...
Area 7000 m2
€ 30.000/mese
Dettagli Scopri questa straordinaria opportunità di affitto nel cuore di Pianiga, nella zona strategica di Cazzago. Proponiamo un capannone industriale e artigianale di ben 7000 mq, situato su un'area totale di 20.000 mq.

Il capannone è suddiviso in tre corpi principali: una spaziosa zona produzione di circa 2500 mq con altezza interna di mt. 6,20, dotata di mensole per carroponte; una zona magazzino estesa su circa 2700 mq con un'altezza impressionante di mt. 12,00 e lucernai apribili che garantiscono luminosità naturale; infine, si trovano gli uffici distribuiti su tre livelli per complessivi 1000 mq caratterizzati da finiture eleganti e pavimento in marmo nello show room ed Ascensore.

La zona Produzione dispone anche di due ampi portoni carrabili che conducono a una tettoia coperta (860 mq) alta mt. 5,80 perfetta per le operazioni logistiche quotidiane.
Il Corpo Magazzino ha altri 2 Portoni ampi ed una rampa di carico
Il capannone è conforme alle normative REI120 ed equipaggiato con impianto sprinkler e anello antincendio completo.

All'esterno troverete un piazzale antistante arricchito da giardino piantumato e un vasto piazzale posteriore (7.000 mq), dove c'è la possibilità d'ampliamento fino a ulteriori circa 4.000 mq.

Disponibile dal Gennaio del 2026 ad un canone mensile competitivo pari a €30.000. Questa proprietà rappresenta l'opzione ideale sia per attività produttive che logistiche grazie alla sua posizione strategica tra Dolo e Pianiga visibile dalla A4 e servito da 2 caselli vicini.

Non perdere l'occasione! Contatta Leonardo al numero +39-3486007522 o via email all'indirizzo leo@lafonteimmobiliare.it per maggiori informazioni o per organizzare una visita della proprietà!
Possibilità anche d'acquisto.

L.S.
Anno Costruzione:2014
IPE:0.00 kWh/m3anno

Richiedi informazioni sull'abitazione

I tuoi dati di contatto.


torna all'elenco immobili vai alla ricerca

Potrebbero interessarti anche ...